Продажа дома

Московская область, Электроугли, ул Сергеевская

100 м²
Площадь
1
Этажность
10 сот
Площадь участка

Это объявление снято с публикации.

Если это ваше объявление, восстановите его в личном кабинете или подайте новое.

В ином случае, вы можете перейти на главную или поискать другие предложения.

Арт. 83242881. Тёплый дом на 10 сотках ИЖС в городе Электроугли



25 минут до Москвы • Все коммуникации • Газ по границе • Подходит под семейную ипотеку



Продаётся жилой дом, расположенный в городе Электроугли (Горьковское направление, Ногинский район) — с полноценным городским статусом, асфальтированными улицами, школами, садами, парками и удобной транспортной доступностью до Москвы.



Дом построен на участке 10 соток (категория — ИЖС), полностью подходит под ипотеку, включая семейную и с использованием материнского капитала. Документы готовы, один взрослый собственник.





Характеристики дома:



Каркас усиленный, обшивка — современный вентилируемый материал Hauberg.



Кровля — металлочерепица, с профессиональным монтажом и утеплением.



Фундамент — заглублённые частые сваи, рассчитан на многолетнюю эксплуатацию без усадки.



Окна — двухкамерные стеклопакеты, обеспечивают тепло- и шумоизоляцию.



Установлен электрический котёл, система отопления готова и работает.



Общая мощность подключения — 15 кВт (трёхфазное питание).



Вода — скважина 15 метров.



Канализация — автономный септик.



Газопровод проходит по границе участка, подключение возможно сразу новому собственнику.







Планировка:



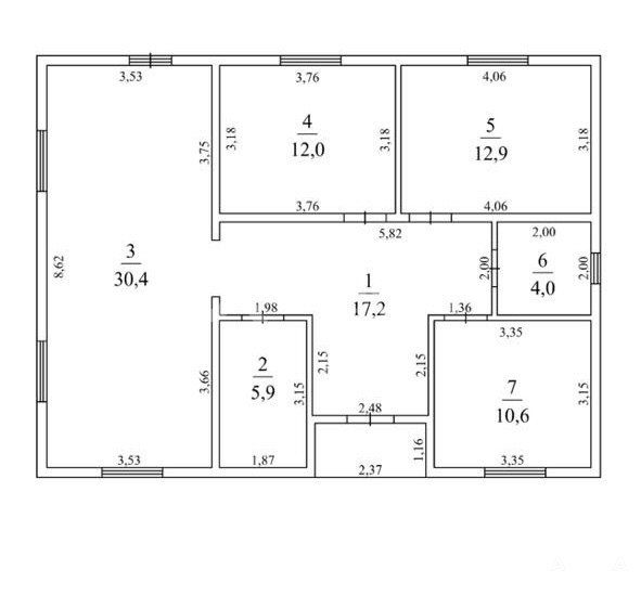
Площадь помещений распределена функционально и удобно (см. прилагаемый план):



Центральный холл — 17, 2 м²



Просторная кухня-гостиная — 30, 4 м² с возможностью зонирования



Три спальни (12.0, 12.9 и 10.6 м²) — каждая с окном, изолированные



Санузел — 4.0 м²



Кладовая или котельная — 5.9 м²





Дом тёплый, сухой, не требует вложений. Подходит как для семьи с детьми, так и для проживания с пожилыми родителями или организацией отдельного кабинета.





Участок:



10 соток (ИЖС) — позволяет строить, регистрироваться, использовать ипотечные программы.



Правильная форма, сухой, с возможностью организации ландшафтного дизайна, беседки, бани или теплицы.



Хороший заезд, освещённая улица, постоянные соседи.







Инфраструктура:



Дом находится в тихом районе города Электроугли, в 7 минутах пешком от железнодорожной станции (на электричке до Курского вокзала — менее часа). Удобный выезд на трассу М-12 — до МКАД около 25 минут на машине.



В шаговой доступности:



Школа №30 — современное здание, отличная репутация, углублённые предметы.



Детские сады: №40, №34, частные развивающие группы и клубы.



Магазины: Пятёрочка, Дикси, Магнит, Верный, ВкусВилл.



Поликлиника, аптеки, МФЦ, стоматология, частные клиники.



Городской парк, новая благоустроенная детская площадка в 50 метрах от участка.



Дом культуры, спортивный комплекс, кружки, секции.





Это не СНТ, не деревня — это полноценная городская среда, где всё под рукой: транспорт, медицина, образование, отдых.





Юридическая чистота:



Дом зарегистрирован.



Категория — ИЖС.



Один взрослый собственник.



Быстрый выход на сделку.



Полностью подходит под ипотеку, включая семейную.



Дата обновления: 6 ноября 2025

Дом/Коттедж/Таунхаус/Дуплекс Ипотека под ИЖС От собственника